Current Floor Plans
These practical, yet spacious home plans may be built on any one of our large country lots which are situated on a quiet county- owned and maintained street with no association dues, no water or sewer bills, and are located on the Flat River and near the Lowell State Game area. Prime Flat River frontage is available on many of our lots, all located in the Lowell School District, and just 2 miles to Lowell Schools and Meijer. Many of these sites will accommodate walkout lower levels.
Our newest 3 bedroom model comes standard with the following features:
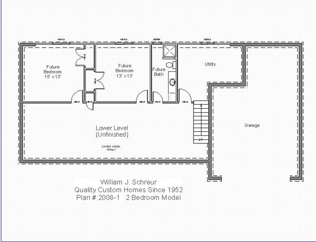
- 1404 square feet on the main floor, offering an open floor plan with 9' ceilings throughout. Daylight lower level roughed in for 2 additional bedrooms, 3rd full bath, large rec room and utility room. If finished, this area would create approximately 1200-1300 square feet of additional living space.
- 3 bedrooms are on the main floor, 2 of which have separate his/her closets
- Large main floor bathroom walks through to the master bedroom and has a 5’ fully enclosed acrylic tub/shower unit and a large double lavatory vanity. Special half
- bath/laundry/walk-in pantry is conveniently located near kitchen/garage entry with 2nd full bath optional on main floor and/or lower level
- Upgraded hardwood cabinets in both kitchen and bathroom, dishwasher and microwave included.
- High efficiency natural gas furnace; all windows have energy efficient Low E glass.
- 10x14 deck, sidewalks, driveway and landscaping included.
- 4” well with over-sized septic tanks and drain field, 30 year warranty high definition shingles
- Over-sized 32x22 garage with storage/workshop area
- One year new home warranty, upgraded floor coverings and landscaping included
|
3 Bedroom Model - Front Elevation |
|
3 Bedroom Model - Main Floor |
|
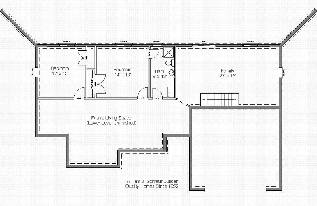
3 Bedroom Model - Lower Level Call for current pricing
Land contract possible |
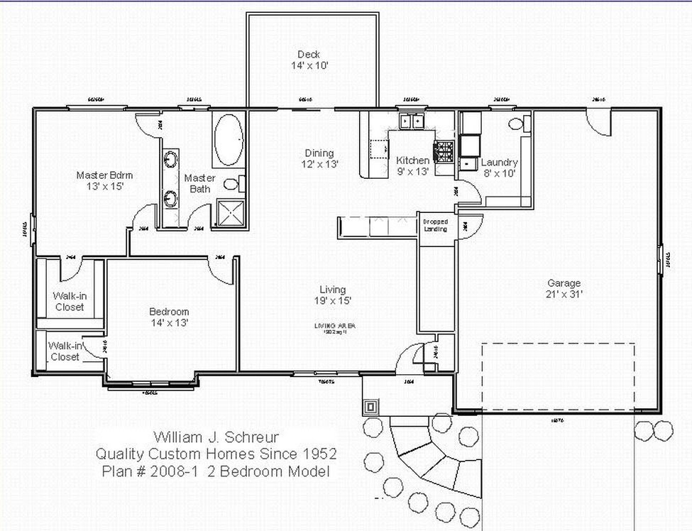
Our newest 2 Bedroom Model comes standard with the following features:
Call for current pricing |
|
2 Bedroom Model - Front Elevation |
|
2 Bedroom Model - Main Floor |
|
2 Bedroom Model - Lower Level |
|
2 Bedroom Model (Wide Dormer Variation) |
|
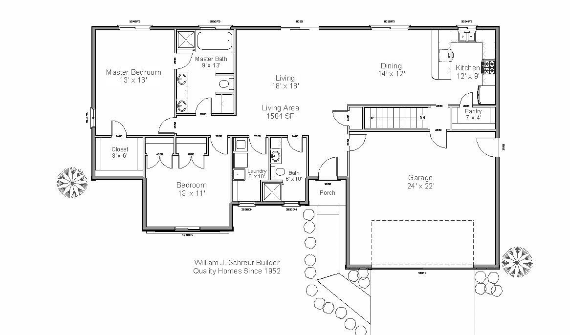
River Lot Plan - 2 Bed, 2 Bath walkout Plan# 2008-3 |
|
River Lot Plan - Main Floor Plan# 2008-3 |
|
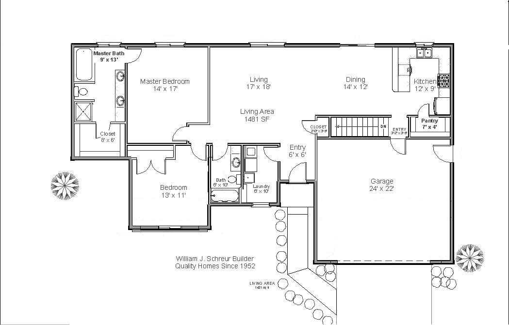
River Lot Plan- Main Floor (Altered Version) Plan#2008-3 |
|
River Lot Plan - Lower Level Plan# 2008-3 |











